将我的博客复制一份至《海外博客》
由于数据量较大,请您耐心等待复制完成
2016 (532)
2017 (52)
2025 (2)
回复 '三河匹夫' 的评论 : 嗯,后来旅游期间听导游介绍...
烟丝是抽水烟的。
神游夜市,梦中寻食
哈哈,Takow译作打狗?居然不兴保护动物?
回复 'Norstar' 的评论 : 说的是地球吧?
回复 'ytwadk' 的评论 : 国军只会正面会战日军,不会打...
你说的是大陆吧?
国军只会耍花枪,中看不中用
难怪名嘴会以吃茶叶蛋而自豪
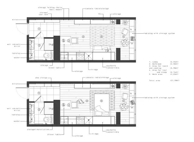
俄罗斯设计师 Andrey Barinov 的22平米空间方案。
厨房、客厅、卫生间一应俱全,床隐藏在墙中。恰当的储物和简洁的家具让空间利用率更高。