两个月前决定翻修厨房,中间遇到了许多问题,也学了不少东西。难怪大家说厨房是装修中最贵的,需要设计,拆除,木工,电工,水工,泥瓦工,等等。不用说全家一个月不能做饭了。现在把过程记录下来,希望对大家有帮助。今天是第一贴,厨房设计。
Before as in Before & After:



旧厨房的问题很多:Cabinets are plastic Formica, old (rusty) wall oven, rundown dish washer, wornout plastic sink, old plastic floor thats no longer clearnable...needs more countertop, storage space, most of all, the cooktop is half working....Time for a complete do-over!!
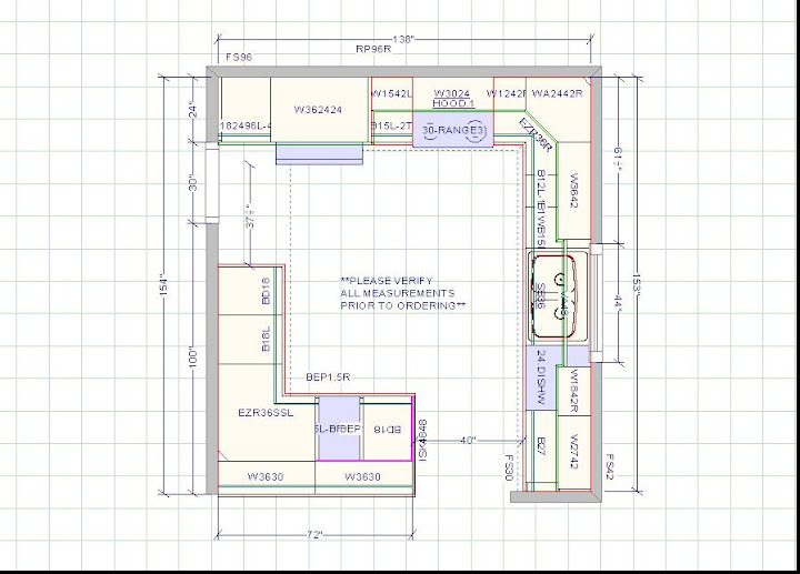
First step is to research, pick out cabinets and design the space. We tried three places. Went to HomeDepot first, decide on colors and styles. The designer was half helpful but gave some good tips on where to put range, etc. When we got the price quote, we are looking at $10,000 - $15,000 for a quality cabinets. Also tried local distributors that service contractors, quality is better than homedepot but still within the same price range. We checked out Allwoodsfast from Costco.com, although lack of bells and whistles, only $7000-8000 for some good quality cabinets. The Costco designer was experienced too. A few conference calls later. Below are the design and effects:



Looking back, a few things are very important at this step. First the measurement is critical. Make sure follow the measurement guide closely and leave enough space for the cabinets (you can always fill the gaps with fillers). Secondly, careful planning of plumbing and electric. Make sure where you want the sink and range, frig, and other appliances, what to do with heating, how to handle vent (esp. chinese cooking), etc. We had to make a few difficult choices:
1. Getting rid of radiant baseboard heat, replacing with toe-kick heater
2. Knock out a closet, leaving more space for a pantry
3. Knock out sofit, have 42inch cabinets to the ceiling.
4. Move hood from wall to outside to a different wall, need to change vent through roof
5. knock out half wall, replace with cabinets
From design point of view, these are good choices but we had quite a few surprises during demolition.
To be continued.