个人资料
  • 博客访问:
正文

地下室装修笔记 - 设计(一)

(2015-10-28 19:15:53) 下一个

设计是最为重要的一步,虽然可以后期调整,小的改动还可以,大的耗工耗时。

 

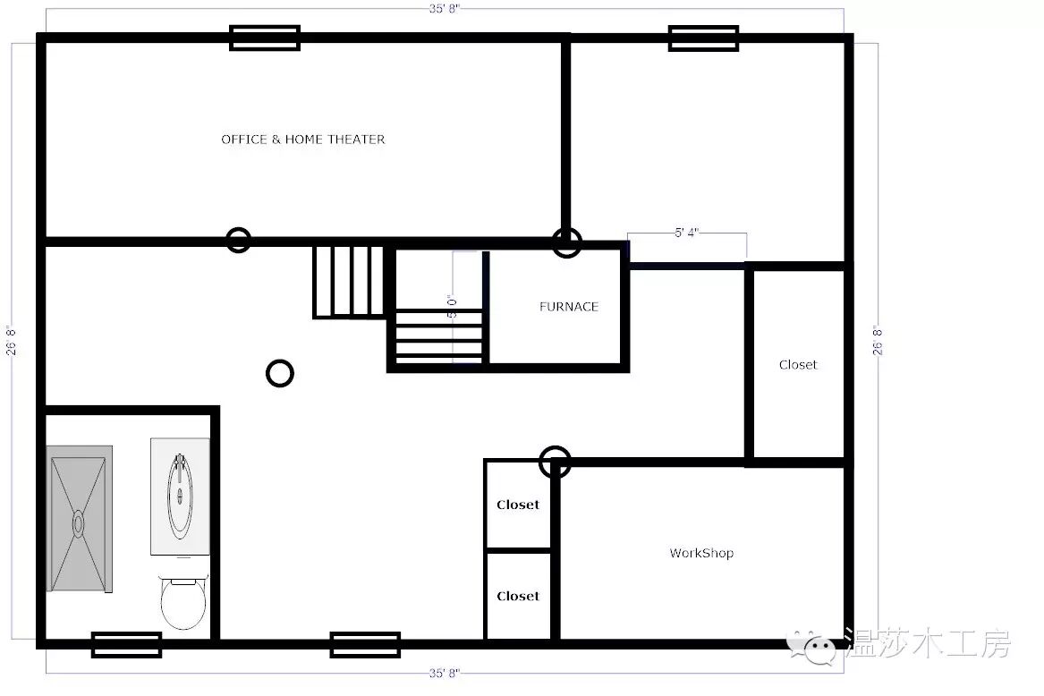
注:原始的草图已经丢失,封面的图纸是为写文章后补的。

 

设计的第一步是画图纸,可以用autocad, sketchup 等,这些年做了不少东西,很感兴趣学习一下这些软件,可是终究没有找到时间。我采用的是最原始也是最简单方法 - 手画,手画的时候要注意比例,还要注明尺寸。计算材料时将会需要这些尺寸进行计算。还有楼梯,承重柱,锅炉, 洗澡间的预留管道都要注明。承重柱最好包在墙里面,如果设计不允许,可以包在装饰柱里 (Home Depot / LOWES 都有卖的),我是自己用做build-in家具的边角下料做的装饰柱。锅炉前面要预留32英寸以便于将来维护。

 

 

 

 

在设计的初期,我就做一些改动了。我的builder在通风管道上偷懒了,有很多管子没有转到beam 之间,而是直接在beam的下面走,这样将来那个位置的屋顶高度就要降低大约半尺左右。为提高屋子高度,我把管道进行调整,全部转入到 beam 之间。 因为这样会增加很多弯道,我担心会不会影响风量,后来证明我的担心是多余的。 我先注明一下,我只改了通到一楼的管道,大约4-5 根吧,如果要改通往二楼的管道还需要注意。

 

 

我的博客:http://blog.wenxuecity.com/myoverview/45928/

 

欢迎加入我的微信公众号:登录到wechat -> Discover -> Scan QR Code, 然后对准下面的二维码图片。

[ 打印 ]
阅读 ( )评论
评论
目前还没有任何评论
登录后才可评论.