Insight

工程技术,地产投资,信仰家园,时尚生活
正文

新加坡一栋半独立住宅360度结构分析

(2015-02-08 06:40:52) 下一个

只有与当地自然环境和审美风格作最帖切的设计,才是从那里“自然生长”出的建筑。鸡蛋花,中式庭院的园林山水审美哲学加上西方现代极简主义,奇 怪地混搭在一起。全世界可以拷贝这样的创意,但是放在别的其他地方,都不如在新加坡这儿“长出来”的这栋房子那么自然和惬意。



来自建筑师的描述:位于半独立住宅的中央庭院分布在两个楼层上。在首层庭院, 鸡蛋花树位于池塘的中央,池塘四周是木材饰面的框架。两倍大的客厅和餐厅围绕着这个庭院。






二层的庭院位于一层餐厅的正上方,二层主卧的前方。面向庭院的立面为通高的玻璃,玻璃外面安装有层叠咬合的垂直和水平木条。





庭院给予了住宅更多的私密性,同时也使得阳光可以射入中央的房间。此外也起到了充当隔离远处主干道噪音的缓冲区的作用 。


























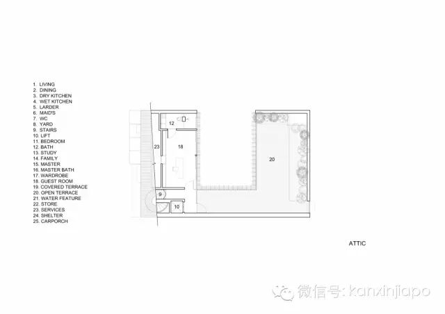
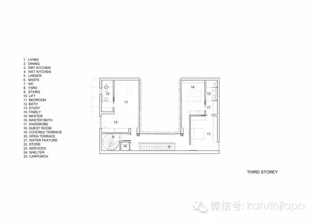
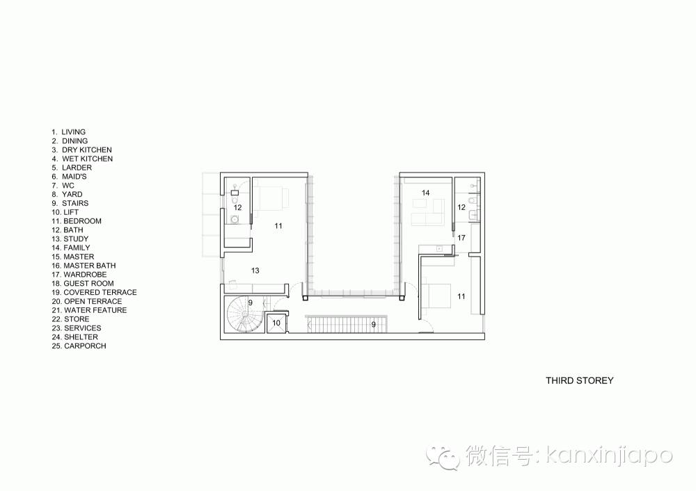
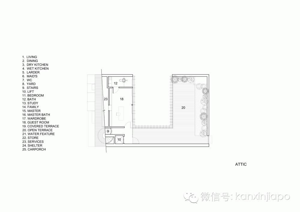
图纸




↑地下室平面图




↑一层平面图




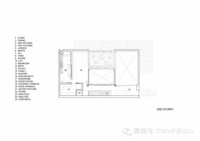
↑二层平面图




↑三层平面图




↑阁楼平面图




↑立面图




↑立面图




↑立面图




 

↑剖面图

项目信息

设计:HYLA事务所

地点:新加坡,Greenbank Park

主创建筑师:Mr. Han Loke Kwang

助理建筑师:Yuzhe, Nicholas Gomes

建筑面积:520平方米

建成时间:2014

摄影:Derek Swalwell

主要承包人:Praxis Contractors Pte Ltd

结构工程师:GCE Consulting Engineers

场地面积:376平方米

[ 打印 ]
评论
目前还没有任何评论
登录后才可评论.